Idylle pur im Reetdachtraum
Bewerten
Objekt melden
595.000 €
Kaufpreis4
Zimmer3
Schlafzimmer117 m²
Wohnfläche836 m²
GrundstücksflächeAdresse
18356 Fuhlendorf
Links
Preise & Kosten
Angaben zur Immobilie
EnergieausweisB
75.4 kWh/(a·m²)
Lage
Fuhlendorf ist eine idyllische Gemeinde im Landkreis Vorpommern-Rügen in Mecklenburg-Vorpommern, gelegen am Südufer des Bodstedter Boddens und des Redensees. Sie besteht aus den Ortsteilen Fuhlendorf, Bodstedt, Michaelsdorf und Gutglück und bietet eine naturnahe Umgebung mit Wäldern und Gewässern. Die Nähe zum Nationalpark Vorpommersche Boddenlandschaft macht die Region besonders attraktiv für Naturliebhaber und bietet vielfältige Möglichkeiten zur Erholung und Freizeitgestaltung. Historisch wurde Fuhlendorf erstmals 1278 urkundlich erwähnt und hat sich seither zu einem staatlich anerkannten Erholungsort entwickelt. Die gute Anbindung an die Städte Barth und Stralsund sowie die Nähe zur Halbinsel Fischland-Darß-Zingst unterstreichen die attraktive Lage der Gemeinde.
Objektbeschreibung
In ruhiger Lage einer neu entstandenen Ferien- und Wohnsiedlung in Fuhlendorf erwartet Sie dieses charmante, reetgedeckte Haus mit traditionellem Flair. Die ortstypische Feldsteineinfriedung, Fensterläden und der angrenzende Teich schaffen eine besondere Atmosphäre – ideal zur Eigennutzung oder zur Ferienvermietung.
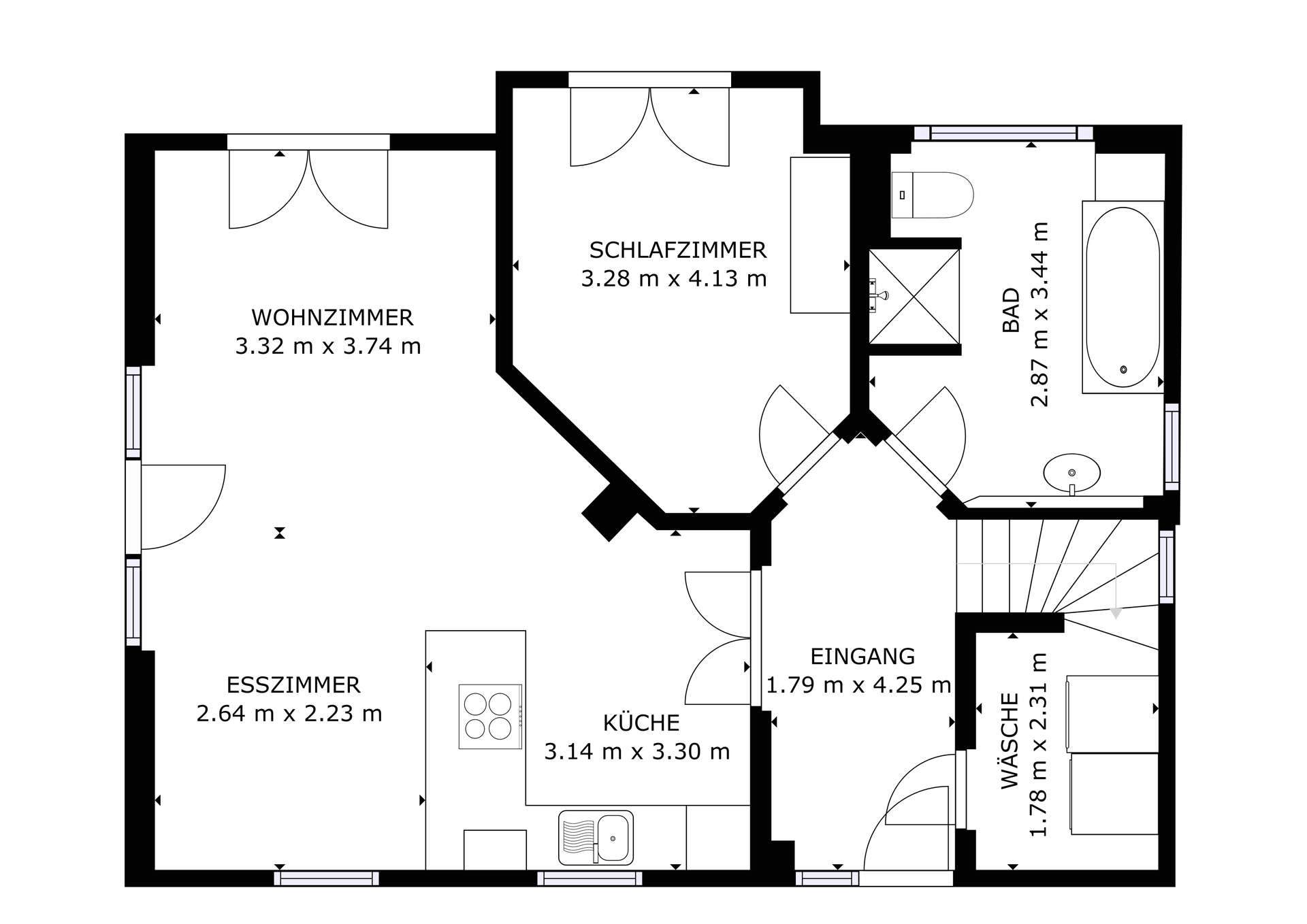
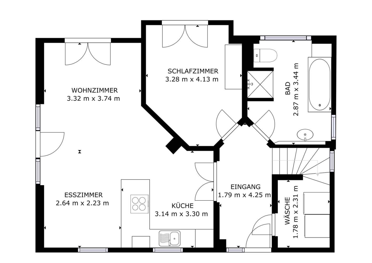
Das Haus bietet Platz für bis zu sechs Personen und wird vollständig möbliert angeboten:
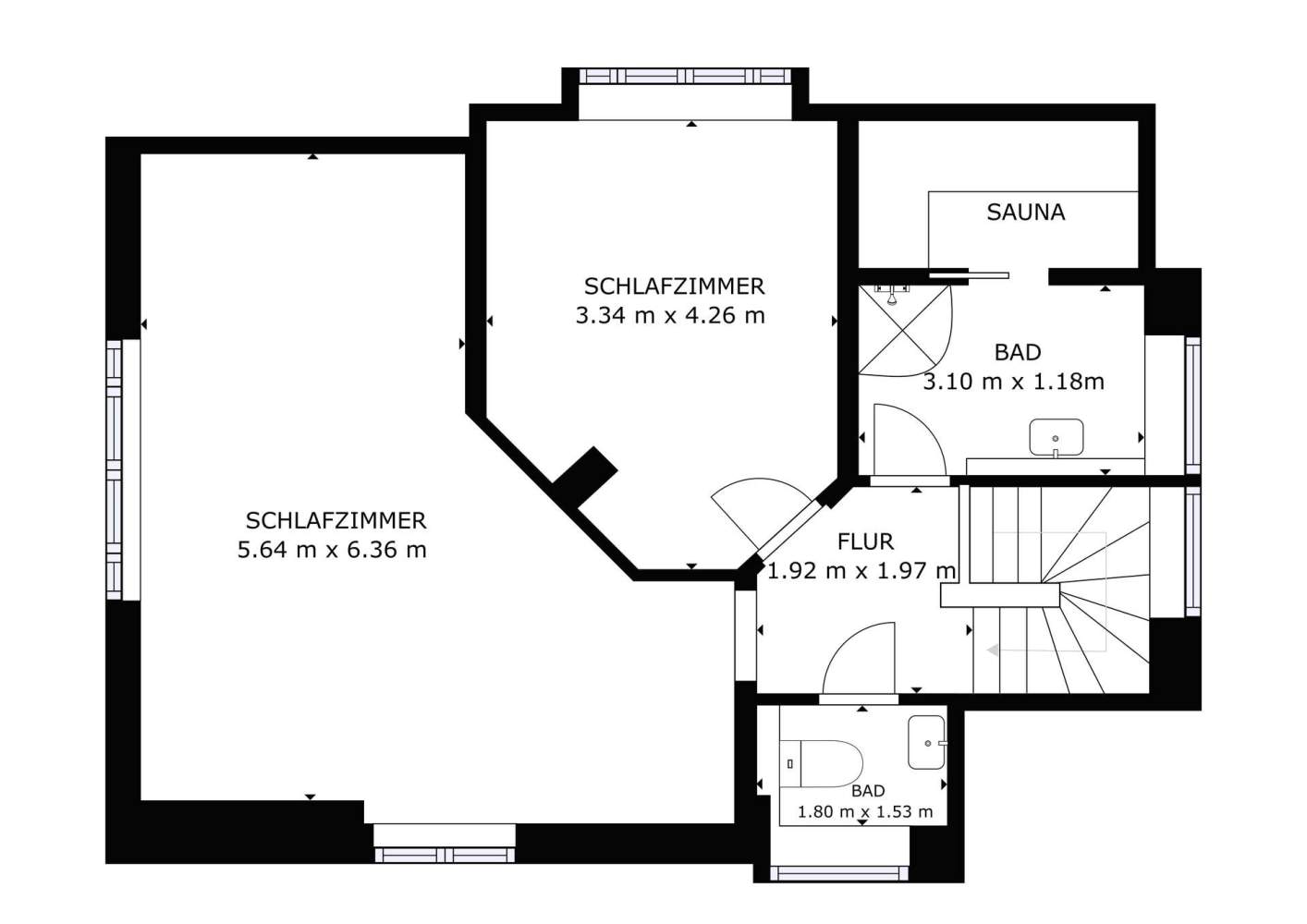
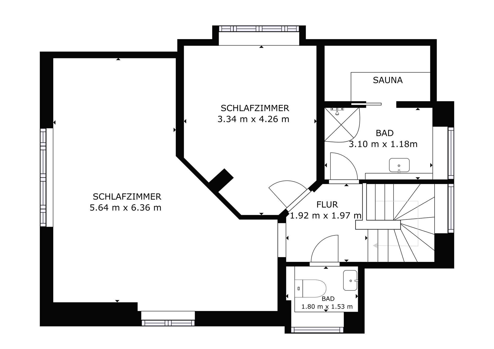
Zwei Schlafzimmer mit Doppelbetten im Obergeschoss
Ein Schlafzimmer mit Doppelbett im Erdgeschoss
Zwei moderne Bäder mit WC ( im EG mit Badewanne, im OG mit Dusche)
Ein separates Gäste-WC im Obergeschoss.
Eine Sauna im Obergeschoss
Im Erdgeschoss befindet sich ein ca. 30 m² großer Wohn-/Essbereich mit gemütlicher Couchecke, Kaminofen, SAT-TV , voll ausgestatteter Küche und Esstisch für 6 Personen.
Die sonnige Terrasse (Süd-West-Ausrichtung) lädt zum Verweilen ein.
Sonstiges
Wir bitten um Verständnis, dass wir nur vollständige, schriftliche Anfragen (E-Mail) mit Namen, Anschrift und Telefonnummer beantworten können. Gern stehen wir Ihnen auch zu einer persönlichen Beratung im Bereich Baufinanzierung & Immobilienkauf zur Verfügung.
HAFTUNGSAUSSCHLUSS - Alle Angaben sind ohne Gewähr und basieren ausschließlich auf Informationen, die uns von unserem Auftraggeber zur Verfügung gestellt wurden. Wir übernehmen keine Gewähr für die Vollständigkeit, Richtigkeit und Aktualität dieser Angaben.
Ausstattung
Objektart: Einfamilienhaus (zur Ferienvermietung geeignet)
Lage: Fuhlendorf, Landkreis Vorpommern-Rügen
Grundstück: ca. 836 m²
Wohnfläche: ca. 117 m²
Zimmer: 4 (3 Schlafzimmer, 1 Wohn-/Essbereich)
Bäder: 2 Bäder mit WC (ein Wannen- und ein Duschbad), separates Gäste-WC
Besonderheiten: Sauna, Kamin, Reetdach, Feldsteineinfriedung
Bezugsfrei: sofort
Kontaktanfrage
Anbieter
Immodock - Sndg. Media GbR
18439 Stralsund
Immodock - Sndg. Media GbR
Ähnliche Objekte
-
Einfamilienhaus in Barth "provisionsfrei"145 m² Wohnfläche • 522 m² Grundstücksfläche • 7 Zimmer
-
Doppelhaushälfte in Groß Mohrdorf OT Batevitz115 m² Wohnfläche • 630 m² Grundstücksfläche • 3 Zimmer • 1 Badezimmer
-
Einfamilienhaus mit Einliegerwohnung in Toplage160 m² Wohnfläche • 475 m² Grundstücksfläche • 6 Zimmer • 3 Schlafzimmer • 2 Badezimmer
-
Charmantes Wohnhaus in Alleinlage – sanierungsbedürftig mit großem Grundstück100 m² Wohnfläche • 2.624 m² Grundstücksfläche • 3 Zimmer • 2 Schlafzimmer • 1 Badezimmer
-
Wohnen am Wasser in Stralsund220 m² Wohnfläche • 885 m² Grundstücksfläche • 10 Zimmer
-
Den Bodden im Blick - Traumhafte Immobilie in Toplage140 m² Wohnfläche • 600 m² Grundstücksfläche • 6 Zimmer • 3 Schlafzimmer • 2 Badezimmer
-
Reihenhaus mit Südterrasse und Einliegerbereich bei Sagard149 m² Wohnfläche • 300 m² Grundstücksfläche • 7 Zimmer • 4 Schlafzimmer • 3 Badezimmer
-
Haus mit 2 Wohneinheiten am Wasser – Wohnen, wo andere Urlaub machen210 m² Wohnfläche • 1.205 m² Grundstücksfläche • 8 Zimmer • 3 Badezimmer
-
Idyllisches Anwesen - Ruhe und Natur in Wassernähe323 m² Wohnfläche • 5.189 m² Grundstücksfläche • 14 Zimmer • 7 Schlafzimmer • 6 Badezimmer
-
Der Ostsee so nah - Tolles EFH im Norden Rügens98 m² Wohnfläche • 822 m² Grundstücksfläche • 3 Zimmer • 2 Schlafzimmer • 2 Badezimmer